Valkenburg – Strabeek 52
19 september 2025
Wijlre – Past. Steinbuschstraat 16
1 oktober 2025
1215

Landgraaf - Gank 33

Op geliefde en kindvriendelijke locatie in de wijk Parkheide in Landgraaf ligt deze riante, fraai ontworpen halfvrijstaande eengezinswoning uit 1996. Met vrijstaande garage en tuinberging. Een topwoning! Gemoderniseerd in de periode 2016 t/m 2025, grotendeels nieuwe kunststof kozijnen met HR++ glas (in 2022 t/m 2025 vervangen), voorzien van een grote aanbouw uit 2016 en met maar liefst 5 comfortabele slaapkamers. De tuin is in 2018/2019 volledig nieuw aangelegd. Daarnaast is deze woning nagenoeg energieneutraal (label A+++) door volledige isolatie, 15 zonnepanelen uit 2017 en een krachtige (dubbele) hybride warmtepomp uit 2025. Kortom, bij uitstek de ideale gezinswoning voor vele jaren zorgeloos en comfortabel woonplezier met een ultralage energierekening.

Vraagprijs: 475.000,- k.k.

Bouwjaar: 1996; verbouwing/modernisering 2016-2025
Perceel: 305 m2
Inhoud: 587 m3
Woonoppervlakte: 140 m2
Energielabel: A+++, geldig tot 25-09-2035
 
MEDIA
OMSCHRIJVING

Op geliefde en kindvriendelijke locatie in de wijk Parkheide in Landgraaf ligt deze riante, fraai ontworpen halfvrijstaande eengezinswoning uit 1996. Met vrijstaande garage en tuinberging. Een topwoning! Gemoderniseerd in de periode 2016 t/m 2025, grotendeels nieuwe kunststof kozijnen met HR++ glas (in 2022 t/m 2025 vervangen), voorzien van een grote aanbouw uit 2016 en met maar liefst 5 comfortabele slaapkamers. De tuin is in 2018/2019 volledig nieuw aangelegd. Daarnaast is deze woning nagenoeg energieneutraal (label A+++) door volledige isolatie, 15 zonnepanelen uit 2017 en een krachtige (dubbele) hybride warmtepomp uit 2025. Kortom, bij uitstek de ideale gezinswoning voor vele jaren zorgeloos en comfortabel woonplezier met een ultralage energierekening. Deze woning moet je gezien hebben! Bel of mail ons voor een afspraak. Je bent van harte welkom!

BEGANE GROND
De entree van deze mooie woning ligt in de zijgevel aan de Van Doesburglaan. Je staat voor de woning en meteen valt de unieke, uitgebouwde entree naar de woning op, mede door de brede lichtstraat. Eenmaal binnen in de royale hal ervaar je de heerlijke hoeveelheid lichtinval hierdoor! De lichtstraat loopt door in het toilet en aan de andere kant in de berging annex garderobe. In de hal bevindt zich een open designtrap naar de verdieping, een moderne meterkast, een sierradiator en de toegang naar de living middels een glazen deur. Het ruim bemeten gastentoilet uit 2020 is voorzien van een moderne betonlook vloer, glad stucwerk wandafwerking, een wandcloset en een fonteintje. We lopen naar de living. Door de aanbouw aan de achterzijde (met vloerverwarming en een gevelbrede glazen pui (2025) met openslaande tuindeuren) is hier een heerlijke, ruime en open leefruimte van in totaal c. 52 m2 tot stand gekomen. Bewust is ervoor gekozen om de eetkamer in de aanbouw te situeren. Hierdoor is er naast een optimaal tuincontact ook een directe verbinding met de open keuken die zich in het midden van de living bevindt. In de keuken is in 2016 een moderne installatie in U-opstelling geplaatst, voorzien van een spoelbak, 5-pits gaskookplaat met wokbrander, rvs afzuigkap met afstandsbediening, oven-/magnetroncombinatie, koelkast en vaatwasser. De gezellige L-vormige woonkamer (met o.a. een groot hoekraam) bevindt zich aan de voorzijde van de woning. Hier is een extra wand met uitsparingen geplaatst waarin de TV fraai in geïntegreerd kan worden. We lopen terug naar de eetkamer om van daaruit de achtertuin in te lopen. Deze ligt op het zuidwesten dus qua bezonning ideaal! De achtertuin is (inclusief de oprit) in 2018 volledig vernieuwd, onderhoudsvrij ingericht en geheel omsloten met een gemetselde wand en moderne cortenstaal afwerking. Via twee afsluitbare poorten (ook van cortenstaal) is de achtertuin zowel vanaf de oprit als vanaf de entree van de woning bereikbaar. Aansluitend aan de achtertuin bevindt zich een praktische, halfsteens gemetselde berging van ca. 4.50 x 2.00 m. In de berging is een open doorgang naar de aangrenzende vrijstaande garage van ca. 6.00 x 2.90 m, voorzien van een elektrisch bedienbare sectionaalpoort. Op de oprit, gelegen voor de garage is er ruim voldoende plek voor 1 personenauto. De voortuin is onderhoudsvriendelijk en volledig nieuw aangelegd in 2019.

VERDIEPING 1
Via de open designtrap in de ontvangsthal lopen we naar boven en komen daar uit op een ruim bemeten overloop, voorzien van een luxe rvs balustrade. De overloop geeft toegang tot de badkamer en 3 comfortabele slaapkamers van respectievelijk ca. 4.40/3.80 x 3.12 m, ca. 3.74 x 2.14 m en ca. 3.83 x 2.00 m. De gehele verdieping (m.u.v. de badkamer) is voorzien van een moderne, luxe laminaatvloer. De luxe badkamer van ca. 2.91 x 2.22 m is in 2020 volledig vernieuwd, deels betegeld met marmerlook wandtegels en betonlook vloertegels en voorzien van een ligbad/douchecombinatie, een trendy, dubbel wastafelmeubel, spiegel met geïntegreerde verlichting, een wandcloset en een handdoekradiator. Alle ruimtes (inclusief de overloop) zijn voorzien van een gevelraam, zodat ook op de verdieping sprake is van veel lichtinval. Tevens zijn alle gevelramen in de woning (m.u.v. de entree) voorzien van rolluiken.

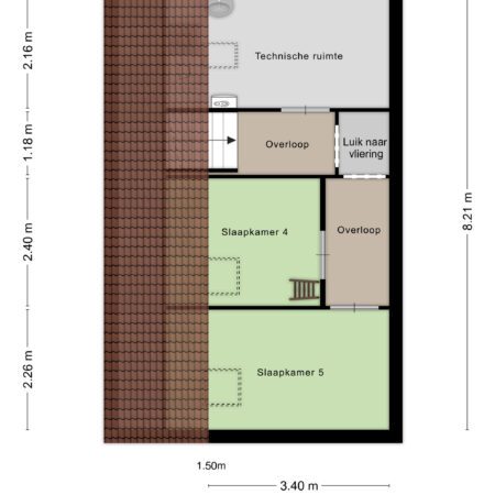
VERDIEPING 2
Via een zelfde open designtrap vanaf de overloop gaan we naar de tweede verdieping waar we uitkomen op een L-vormige overloop. Van hieruit zijn nog eens 2 slaapkamers (gerealiseerd in 2022) en een grote berg- annex wasruimte bereikbaar. Slaapkamer 4 van ca. 2.90 x 2.40 m is voorzien van een groot Velux dakraam en een leuke extra: een entresol van ca. 2.40 x 1.25 m, voorzien van een balustrade en te bereiken met een open houten trap. Slaapkamer 5 van ca. 4.20 x 2.26 m is eveneens voorzien van een groot formaat Velux dakraam en beschikt over een tot meer dan 4.00 m hoog oplopend plafond. Aan de achterzijde van de woning ligt de berging annex wasruimte van ca. 5.12 x 2.16 m, voorzien van een klein formaat Velux dakraam. Deze ruimte beschikt over de witgoedaansluitingen en een vaste wastafel met koud stromend water. Hier zijn ook geplaatst: de cv-combiketel (Intergas HRE Kompakt, bouwjaar 2011, eigendom), de aansluitingen en aansturingsunit voor de warmtepomp, de omvormer voor de zonnepanelen alsmede de centrale unit voor de mechanische ventilatie.

KORT SAMENGEVAT
• Moderne, grote halfvrijstaande eengezinswoning;
• Met vrijstaande garage en stenen tuinberging;
• Gelegen op goede locatie in de geliefde wijk Parkheide;
• Goede staat van onderhoud;
• Gemoderniseerd in de periode 2016 t/m 2025;
• Verduurzaamd in de periode 2017 t/m 2025;
• Heerlijke grote living door aanbouw uit 2016;
• Maar liefst 5 comfortabele slaapkamers;
• Geheel omsloten achtertuin met uitstekende bezonning;
• Kozijnen deels hardhout (1996) en grotendeels kunststof (2022 t/m 2025);
• Dubbele beglazing (deels HR++) in de gehele woning;
• Vloer-, spouw- en dakisolatie;
• Geheel voorzien van rolluiken (m.u.v. de entree);
• Inclusief zonnepanelen (15 stuks; 4059 Wp) uit 2017; geleasd; € 49,08/mnd.);
• Intergas HRE Kompakt CW5, bouwjaar 2011, eigendom;
• Quatt Hybride Duo AMM4 warmtepomp, 2025, eigendom;
• Energielabel A+++, geldig tot 25-09-2035.

OMGEVING
Deze mooie woning ligt in de jonge, kindvriendelijke woonomgeving Parkheide in de wijk Ubach over Worms. Binnen een straal van 1 km heb je alle voorzieningen voor je dagelijkse boodschappen, de kapper, huisarts of tandarts binnen bereik. Direct over de grens in Duitsland (op ca. 6 km afstand) ligt een groot winkelcentrum Magnus Einkaufspark in Übach-Palenberg. Aan de overkant van de woning ligt een basisschool met peuterspeelzaal. Voor het voortgezet onderwijs kun je bijvoorbeeld terecht op het Eijkhagen College Landgraaf (3,6 km) of het Beroepscollege Parkstad Limburg (3,2 km). Qua bereikbaarheid ligt deze woning ideaal. De aansluiting met de Parkstadring N300 ligt op korte afstand. Via de N300 autoweg ben je in no-time op de A76 en A2 richting Eindhoven, Maastricht of Heerlen, Aken. Voor het openbaar vervoer ligt er op ca. 650 m een bushalte en op ca. 4,4 km het NS-spoorwegstation Landgraaf. Last but not least, deze woning ligt op steenworp afstand van het prachtige natuurgebied Brunssummerheide waar je heerlijk kunt wandelen en fietsen. Daarnaast kun je in de omgeving van deze woning terecht bij diverse sportverenigingen. Kortom, het is heerlijk wonen in Parkheide!

OVERIG
Ter bescherming van de belangen van zowel koper als verkoper wordt uitdrukkelijk gesteld dat een koopovereenkomst met betrekking tot deze onroerende zaak eerst dan tot stand komt nadat de koper en verkoper de koopovereenkomst hebben getekend ("schriftelijkheidsvereiste"). De termijn die wordt opgenomen voor eventuele (overeengekomen) ontbindende voorwaarden (bv. financiering) is in de regel 6 tot 8 weken na het sluiten van de mondelinge wilsovereenkomst. De waarborgsom/bankgarantie is 10% van de koopsom. De koper dient deze 1 week ná het vervallen van de ontbindende voorwaarden bij de desbetreffende notaris te deponeren. Koper is te allen tijde gerechtigd voor eigen rekening een bouwkundige keuring te (laten) verrichten dan wel andere adviseurs te raadplegen teneinde een goed inzicht te verkrijgen over de staat van onderhoud. Deze informatie is door ons met de nodige zorgvuldigheid samengesteld. Onzerzijds wordt echter geen enkele aansprakelijkheid aanvaard voor enige onvolledigheid, onjuist of anderszins, dan wel de gevolgen daarvan. Alle opgegeven maten en oppervlakten zijn indicatief.
WONINGGEGEVENS
Type: halfvrijstaande eengezinswoning
Bouwjaar: 1996; verbouwing/modernisering: 2016-2025
Woonoppervlakte: 140 m2
Inhoud: 587 m3
Perceelsoppervlakte: 305 m2

ENERGIE
Isolatie: volledige isolatie
Verwarming/water : Intergas HRE Kompakt 36/30 CW5 cv-combiketel, 2011, eigendom
Warmtepomp: Quatt Hybrid Duo AMM4, 2025, eigendom
Zonnepanelen: 15 stuks; 4059 Wp, 2017, geleased
Energielabel: A+++, geldig tot 25-09-2035
BINNEN
Staat onderhoud: goed
Kamers: 8
Slaapkamers: 5
Sanitaire voorzieningen: luxe, modern, 2020
Keuken: modern, 2016

BUITEN
Staat onderhoud: goed
Staat schilderwerk: goed
Tuin: achtertuin, zijtuin en voortuin: ca. 182m2 totaal
Uitzicht: woonwijk
Parkeren op eigen erf en gratis openbaar parkeren in vakken tegenover de woning
Neem contact op