Beek – Pater Kusterspad 4
15 maart 2026
715

Urmond - De Bath 38

Op een prachtige locatie in het karakteristieke Oud-Urmond met beschermde natuur en de Maas meteen tegenover je, ligt deze geschakelde, instapklare eengezinswoning uit 1983 met 4 slaapkamers en garage. In 2017 gemoderniseerd en energiezuinig door volledige isolatie, dubbele beglazing en 13 zonnepanelen (energielabel A). Lees snel verder om alles te weten te komen over deze mooie woning en bel (043-4506028) of mail (info@vaqs.nl) ons voor het maken van een afspraak voor een bezichtiging. Je bent van harte welkom!

Vraagprijs: 305.000,- k.k.

Bouwjaar: 1983
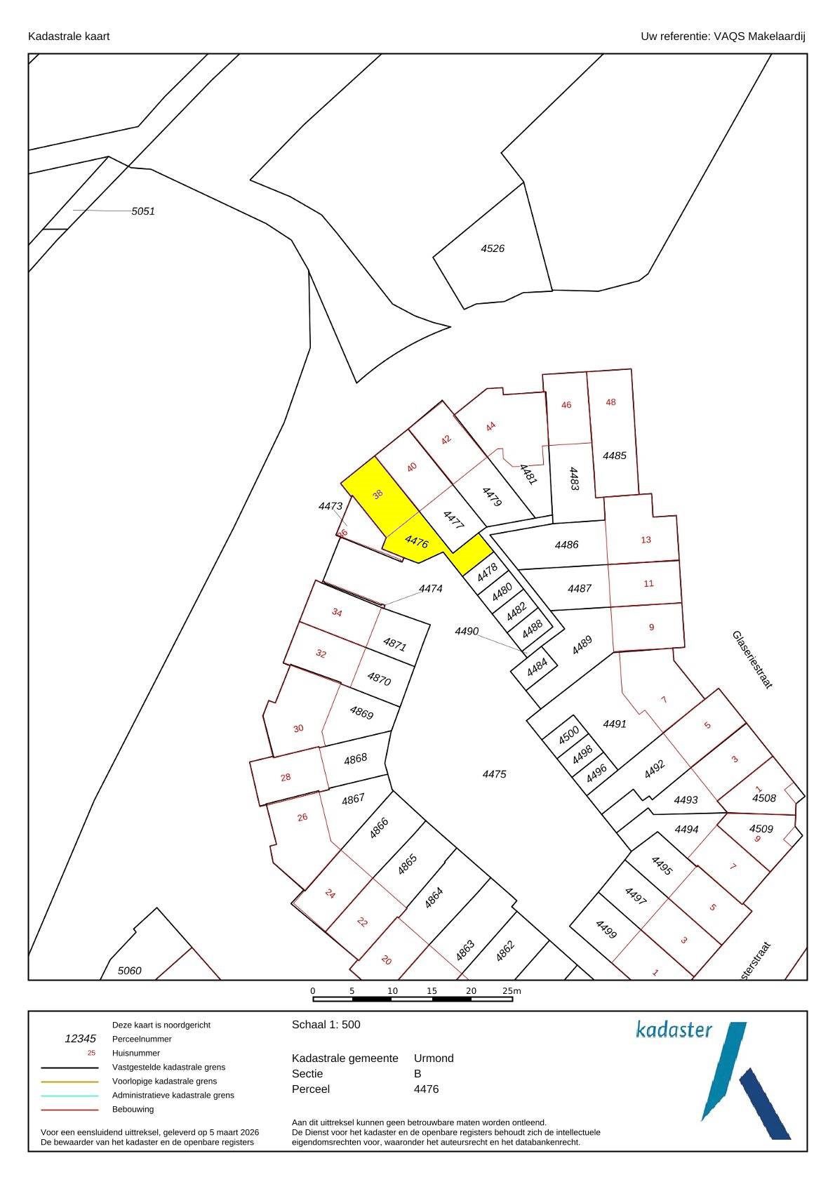
Perceel: 94 m2
Inhoud: ca. 391 m3
Woonoppervlakte: ca.107 m2
Energielabel: A, geldig tot 16-06-2030
 
MEDIA
OMSCHRIJVING

Op een prachtige locatie in het karakteristieke Oud-Urmond met beschermde natuur en de Maas meteen tegenover je, ligt deze geschakelde, instapklare eengezinswoning uit 1983 met 4 slaapkamers en garage. In 2017 gemoderniseerd en energiezuinig door volledige isolatie, dubbele beglazing en 13 zonnepanelen (energielabel A). Lees snel verder om alles te weten te komen over deze mooie woning en bel (043-4506028) of mail (info@vaqs.nl) ons voor het maken van een afspraak voor een bezichtiging. Je bent van harte welkom!

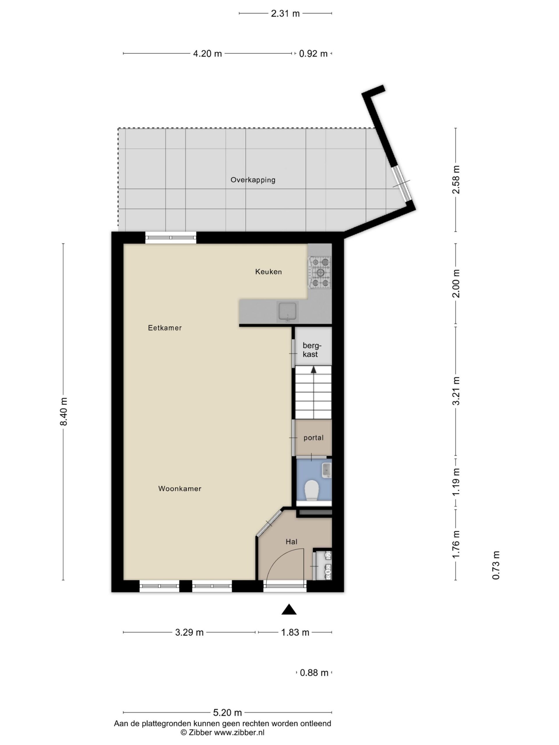
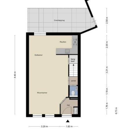
BEGANE GROND
Je komt de woning binnen in een hal van ca. 1.85 x 1.75 m. Hier bevindt zich een moderne, uitgebreide meterkast (10 groepen, 3 aardlekschakelaars en glasvezelaansluiting) en een garderobenis. We lopen de woonkamer in. Deze heeft een oppervlakte van ruim 32 m2 en veel lichtinval. Voorzien van een moderne plavuizen vloer met vloerverwarming. In de woonkamer bevindt zich de toegang naar het portaal met gastentoilet en de trap naar de verdieping, toegang naar een ruime berging en de doorgang naar de open keuken. De keuken van ca. 2.31 x 2.00 m is in 2017 gerenoveerd en voorzien van een moderne greeploze inbouwkeuken in hoekopstelling met komposiet werkblad en spatwand, spoelbak, 90 cm inductiekookplaat, 90cm rvs-afzuigkap, oven-magnetroncombinatie en alle aansluitingen en ruimte voor het integreren van een inbouwvaatwasser. Via een loopdeur in de keuken gaan we naar buiten en komen daar in een onderhoudsvriendelijke achtertuin, gelegen op het zuidoosten met een royale aluminium terrasoverkapping, buitenstopcontacten, een buitenkraan en een luxe schutting rondom voor maximale privacy. Vanuit de tuin kun je via een afsluitbare houten poort naar buiten en dan kom je uit in het overdekte gedeelte van de gemeenschappelijke entree naar de garageboxen die uitsluitend toebehoren aan de bewoners van dit woongebied. De garagebox van ca. 4.80 x 2.90 m die behoort bij deze woning is direct achter de achtertuin gelegen en voorzien van een stalen kantelpoort en elektra. We gaan terug naar binnen.

VERDIEPING 1
Via het portaal vanuit de woonkamer kunnen we naar boven, doch komen eerst bij het gastentoilet. Ook in 2017 aangepakt, geheel betegeld en voorzien van een modern wandcloset en fonteintje. Tevens aangesloten op de mechanische ventilatie die verder is aangesloten op de keuken en de badkamer. We lopen de gesloten trap naar de verdieping op en komen aldaar uit op de overloop, waar een Eurom (NL-fabricaat) airconditioning uit 2017 hangt. Van hieruit zijn 3 slaapkamers en de badkamer bereikbaar. De grootste slaapkamer van ca. 4.32 x 3.30 m ligt aan de voorzijde. Deze is, net als als de gehele woning, voorzien van witte rolluiken. Tevens aan de voorzijde ligt de tweede slaapkamer van ca. 3.00/3.20 x 1.85 m. Aan de achterzijde van de woning ligt de derde slaapkamer van ca. 4.00 x 3.35/2.75 m en de in 2017 gerenoveerde badkamer van ca. 2.35 x 2.00 m. Deze is geheel betegeld en voorzien van elektrische vloerverwarming, een wastafelmeubel, wandcloset, ligbad/douchecombinatie, sierradiator, twee vaste kasten en een plafond met spots. Met uitzondering van de badkamer is de gehele verdieping voorzien van een moderne laminaatvloer.

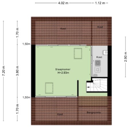
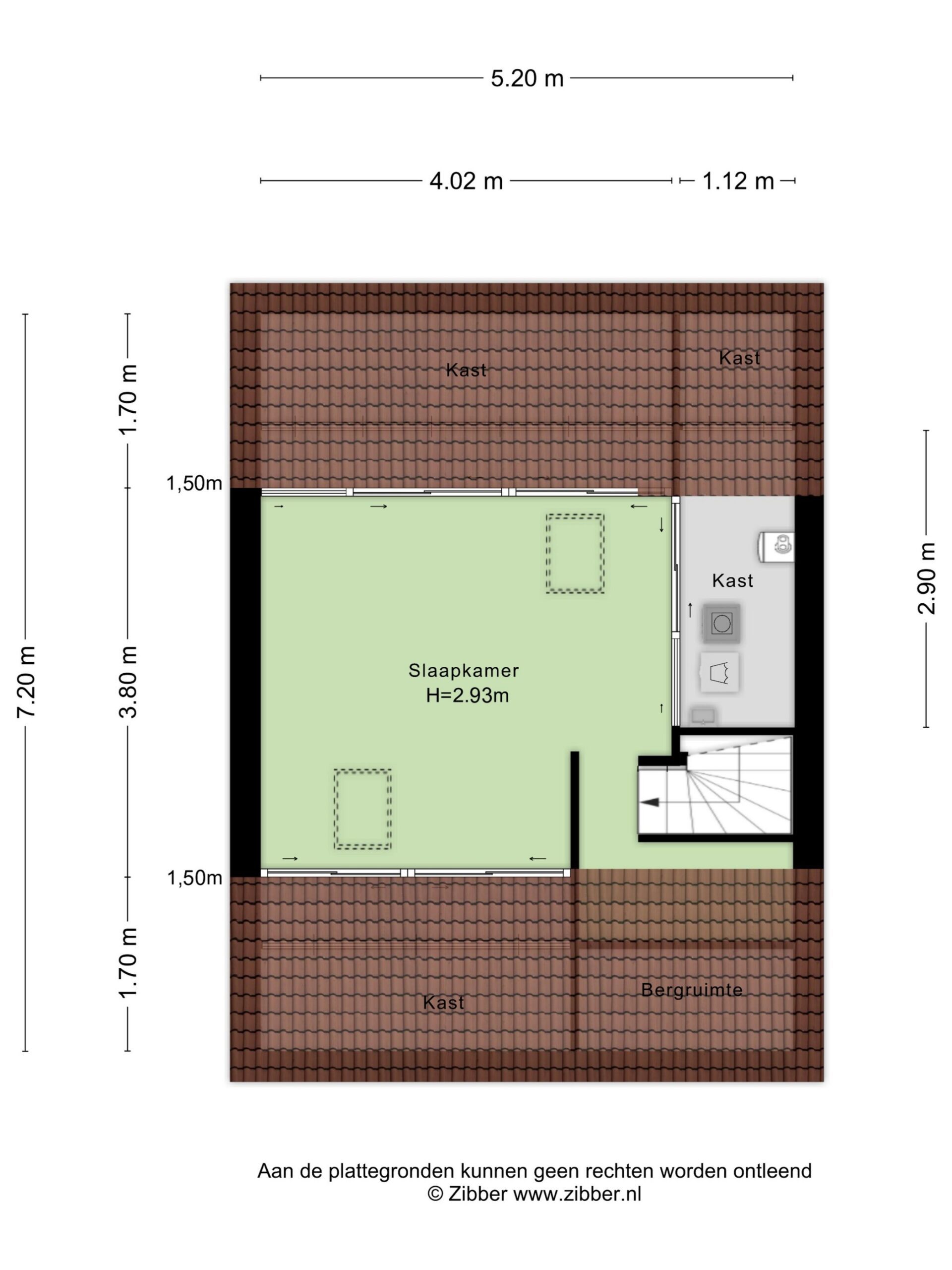
VERDIEPING 2
In oorsprong had deze woning een vlizotrap en een bergzolder. In 2017 is dit op professionele wijze aangepakt en gewijzigd in een vaste trap vanaf de overloop eerste verdieping naar een volwaardige vierde slaapkamer van ca. 5.20 x 3.80 m met een moderne laminaatvloer, glad stucwerk wandafwerking, plafond tot in de nok van het dak alwaar spots zijn geïntegreerd, 2 moderne Velux dakramen, aan beide zijden een royale bergruimte met schuifwanden en in de rechtergevel een met schuifwanden toegankelijke ruimte waar de cv-ketel en de witgoedaansluitingen zijn geplaatst. Last but not least ook nog voorzien van een wateraansluiting met gootsteen.

KORT SAMENGEVAT
• Toplocatie in Oud-Urmond met natuur en de Maas aan de overkant;
• Instapklare, geschakelde eengezinswoning;
• Met 4 slaapkamers en garage;
• In 2017 gemoderniseerd;
• Moderne luxe keuken en sanitair uit 2017;
• Volledige isolatie en HR++ beglazing;
• Voorzien van rolluiken;
• 13 zonnepanelen uit 2018 in eigendom;
• Energielabel A, geldig tot 16-06-2030;
• Voorzien van vloerverwarming in de living en op de badkamer;
• Voorzien van een onderhoudsvrije tuin op zuidoost met terrasoverkapping;
• Nefit HR Trendline cv-combiketel, bouwjaar 2017, eigendom;
• Airconditioning (Eurom) uit 2017 op de eerste verdieping.

OMGEVING
Deze prachtige woning ligt op een unieke, rustige locatie in Oud-Urmond. Een bijzonder karakteristiek gedeelte van Urmond met een pittoresk straatbeeld, afgewisseld door karakteristieke historische panden en een in 1983 gerealiseerd woonwijkje waar slechts zelden iets te koop komt. Urmond ligt in de westelijke mijnstreek. Alle basisvoorzieningen zijn er aanwezig. Zoals een landelijke supermarkt, basisschool, huisartsenpraktijk, apotheek, diverse kappers, een bakkerij, fruit- en groentewinkel, fysiotherapeut, thuiszorg, hondentrimsalon, sportschool, tennisclub, voetbalvereniging etc. Op loopafstand van de woning ligt een hele mooie speeltuin voor de kids. Voor nog meer voorzieningen ligt Stein aangrenzend en dus dichtbij. De dichtstbijzijnde bushalte ligt op ca. 550 m aan de Plakstraat. Deze kan je o.a. brengen naar de nabijgelegen treinstations Beek-Elsloo, Geleen-Lutterade of naar Sittard. Voor naar je werk met je auto is op ca. 2 km afstand de oprit naar de autosnelweg A2, richting Maastricht of Roermond-Weert-Eindhoven gelegen. Urmond kent een rijk verenigingsleven, of het nu gaat om de lokale fanfare, de schutterij of diverse sportverenigingen (tennisclub, volleybal- of voetbalvereniging), er is van alles te beleven. Voor je ontspanning hoef je slechts de voordeur uit te lopen. Aan de overkant ligt een prachtig natuurgebied langs de Maas waar je heerlijk kunt wandelen of fietsen.

OVERIG
Ter bescherming van de belangen van zowel koper als verkoper wordt uitdrukkelijk gesteld dat een koopovereenkomst met betrekking tot deze onroerende zaak eerst dan tot stand komt nadat de koper en verkoper de koopovereenkomst hebben getekend ("schriftelijkheidsvereiste"). De termijn die wordt opgenomen voor eventuele (overeengekomen) ontbindende voorwaarden (bv. financiering) is in de regel 6 tot 8 weken na het sluiten van de mondelinge wilsovereenkomst. De waarborgsom/bankgarantie is 10% van de koopsom. De koper dient deze 1 week ná het vervallen van de ontbindende voorwaarden bij de desbetreffende notaris te deponeren. Koper is te allen tijde gerechtigd voor eigen rekening een bouwkundige keuring te (laten) verrichten dan wel andere adviseurs te raadplegen teneinde een goed inzicht te verkrijgen over de staat van onderhoud. Deze informatie is door ons met de nodige zorgvuldigheid samengesteld. Onzerzijds wordt echter geen enkele aansprakelijkheid aanvaard voor enige onvolledigheid, onjuist of anderszins, dan wel de gevolgen daarvan. Alle opgegeven maten en oppervlakten zijn indicatief.
WONINGGEGEVENS
Type: schakelwoning
Bouwjaar: 1983
Woonoppervlakte: ca.107 m2
Inhoud: ca. 391 m3
Perceelsoppervlakte: 94 m2

ENERGIE
Isolatie: volledige isolatie; dubbele HR++ beglazing
Zonnepanelen:13 stuks, bouwjr. 2018, eigendom
Verwarming/water: Nefit HR Trendline, bouwjr. 2017, eigendom
Energielabel: A, geldig tot 16-06-2030
BINNEN
Staat onderhoud woning: uitstekend
Kamers: 7
Slaapkamers: 4
Sanitaire voorzieningen: modern (2017)
Keuken: modern (2017)

BUITEN
Staat onderhoud woning: uitstekend
Staat schilderwerk: uitstekend
Tuin: rondom; achtertuin op zuidoost
Uitzicht: natuurgebied en Maas
Parkeren: langs openbare straat (gratis)
Neem contact op