Margraten – Laatbank 2
2 augustus 2024
Valkenburg (Sibbe) – Op de Mergelstoel 12
19 oktober 2024
Verkocht
2224

Landgraaf - Burg. Custerslaan 17

Op geliefde, rustige locatie nabij landelijk gebied gelegen goed onderhouden, karakteristiek herenhuis uit 1934 met energielabel A. In 2004 smaakvol getransformeerd tot een uniek, riant droomhuis waar leefruimte en wooncomfort voorop staat! In combinatie met de prachtig aangelegde siertuin met diverse sfeervolle terrassen en een grote garage uit 2017, gelegen aan de achterzijde, worden hier al jouw woonwensen waargemaakt. Kom gerust kijken om het zelf te ervaren. Je bent van harte welkom!

Vraagprijs: 450.000,- k.k.

Bouwjaar: 1934; aanbouw: 2004; garage: 2017
Perceel: 541 m2
Inhoud: 718 m3
Woonoppervlakte: 204 m2
Energielabel: A, geldig tot 25-05-2030
 
MEDIA
OMSCHRIJVING

Op geliefde, rustige locatie nabij landelijk gebied gelegen goed onderhouden, karakteristiek herenhuis uit 1934 met energielabel A. In 2004 smaakvol getransformeerd tot een uniek, riant droomhuis waar leefruimte en wooncomfort voorop staat! In combinatie met de prachtig aangelegde siertuin met diverse sfeervolle terrassen en een grote garage uit 2017, gelegen aan de achterzijde, worden hier al jouw woonwensen waargemaakt. Kom gerust kijken om het zelf te ervaren. Je bent van harte welkom!

BEGANE GROND
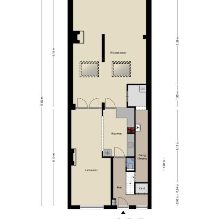
Je komt aanrijden voor de bezichtiging en parkeert je auto in de parkeerstrook tegenover de woning. Je stapt uit en kijkt naar de voorgevel van de woning. Dat is mooi, die karakteristieke jaren ’30 architectuur! We gaan naar binnen en komen in de hal c.q. gang zoals het in die tijd gebruikelijk was. Omdat het een tussengelegen herenhuis betreft, was er vroeger naast de voordeur een extra deur voor een doorgang naar de achtertuin. Dit is inmiddels gewijzigd in een praktische garderoberuimte in de hal en een separate berg- c.q. was-/cv-ruimte, bereikbaar vanuit de living. De cv-combiketel (Remeha Avanta 28C CW5) is uit 2012 en in eigendom). In de hal bevindt zich een gemoderniseerde meterkast en een modern, deels betegeld toilet met wandcloset en fonteintje. Verder bevindt zich in de hal de recent gerenoveerde trap naar de verdieping. Via een met glaspanelen bezette moderne deur komen we vanuit de hal in de open keuken van ca. 3.95 x 2.65 m. Voorzien van een tegelvloer en een landelijke, in 2021 gemoderniseerde inbouwkeuken, bestaande uit massief houten panelen, een antraciet granieten werkblad en alle gebruikelijke apparatuur (inductiekookplaat, afzuigkap, oven, vaatwasser en koelkast). Vanuit de keuken is er enerzijds een fraaie doorkijk en toegang naar de living en anderzijds ook een open toegang naar de riante eetkamer van ca. 8.10 x 3.35/2.60 m, gelegen aan de voorzijde van de woning. Vanuit de eetkamer lopen we via dubbele openslaande taatsdeuren naar de in 2004 aangebouwde living en eerlijk gezegd, je weet niet wat je ziet! Met een plafondhoogte van maar liefst tussen ca. 3.00 en 3.10 m, een oppervlakte van in totaal ca. 54 m2, veel lichtinval door de grote lichtkoepels en de grote glaspartij in de achtergevel, is dit een leefruimte die ronduit imponeert! Voorzien van een moderne pvc hout-look (licht-eiken) vloer, glad stucwerk wandafwerking, gashaard en infrarood verwarming is dit “the place to be” voor ontspanning en gezellig samenzijn. We lopen vanuit de living naar buiten en komen dan op een buitengewoon sfeervol aangelegd overdekt terras van ca. 6.50 x 4.00 m, geheel voorzien van een aluminium terrasoverkapping. Wordt de zon je te veel dan druk je op een knop om de sunscreen over het dak van de overkapping te activeren. We lopen verder door de tuin en na een gedeelte siertuin met looppad komen we bij het volgende, ook weer bijzonder gezellige terras dat eveneens is overdekt met een aluminium overkapping van ca. 3.65 x 3.65 m. Hier zit je dus letterlijk midden in het groen! Overal buiten is sfeervolle verlichting aangelegd en zijn er diverse stopcontacten aanwezig. We lopen weer verder en komen bij terras nummer 3, gelegen rondom een grote vuurkorf. Je krijgt hier buiten echt een vakantiegevoel en dat wordt nog eens extra benadrukt in het volgende deel van de tuin dat is ingericht met een groot (recent) opzetzwembad met een diameter van bijna 5 meter en met alle bijbehorende voorzieningen, incl. verwarming. Deze wordt ter overname aangeboden. Houdt de tuin dan nooit op? Nee, want aansluitend bevindt zich een grote garage uit 2017 van ca. 6.45 x 5.20 m met een hoogte van ca. 2.60 m, voorzien van een grote, elektrisch bedienbare sectionaalpoort van ca. 5.00 m breedte en last but not least, links van de garage een afsluitbare poort voor een praktisch achterom. De toegang tot de garage via de achterzijde van het perceel is geregeld met notarieel vastgelegde erfdienstbaarheid. We lopen het hele eind door de achtertuin weer terug om de rest van de woning op de verdiepingen te bekijken.

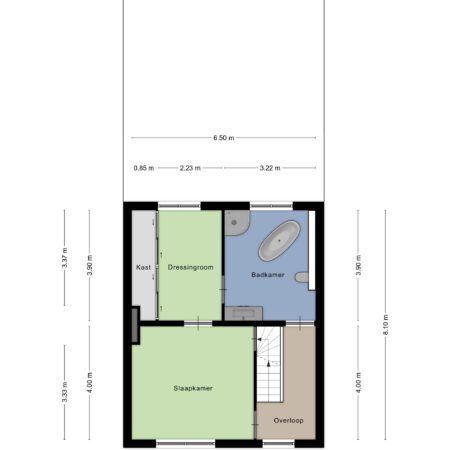
VERDIEPING 1
Via de gesloten trap in de hal lopen we naar boven en komen uit op een royale overloop, die, evenals de slaapkamers, is voorzien van beukenhouten stroken laminaat. De constructie van de verdiepingsvloer bestaat uit een houten balkenlaag. De plafondhoogte bedraagt ca. 2.50 m. We gaan verder en lopen de aan de voorzijde gelegen slaapkamer van ca. 4.30 x 4.00 m binnen. Modern afgewerkt met glad stucwerk en alles in kleur en materiaalgebruik sfeervol op elkaar afgestemd! Vanuit deze slaapkamer loop je de volgende slaapkamer van ca. 3.90 x 3.20 m binnen. Deze kamer is ingericht als praktische dressingroom met een vaste kastenwand uit 2021. Zowel vanuit de overloop als vanuit de slaapkamer annex dressingroom heb je toegang tot de royaal bemeten, geheel betegelde badkamer uit 2004 van ca. 3.90 x 3.20 m. De badkamer is voorzien van vloerverwarming, een wastafelmeubel, ligbad, douchecabine, groot vrijstaand ligbad, wandcloset en handdoekradiator.

VERDIEPING 2
Via de overloop gaan we met een vaste trap nog een verdieping hoger. Eenmaal boven zul je ook hier weer versteld staan! Dit is geen bergzolder meer, maar een tot mega master bedroom verbouwde prachtige ruimte met een vloeroppervlakte van ca. 53 m2! Met zithoek, met thuiswerkplek, met prachtig spantenwerk, met geïsoleerd dak, met schitterende, authentieke dakkapel, met 4 grote Velux dakramen, met verwarming en last but not least, met een schitterende authentieke grenen plankenvloer. Kortom, een adembenemend mooie ruimte! Desgewenst is deze ruimte eenvoudig aan te passen tot max. 3 slaapkamers.

KELDER
Via de wasruimte annex berging op de begane grond loop je naar de toegang tot de kelder. We lopen de trap naar beneden en komen dan in een praktische, droge kelderruimte van ca. 4.35 x 3.80 m, voorzien van een nieuw kelderraam, tegelvloer en stucwerk wandafwerking. De stahoogte bedraagt ca. 1.80 m.

KORT SAMENGEVAT
• Karakteristiek jaren ’30 herenhuis;
• Goed onderhouden en geïsoleerd;
• In 2004 verbouwd en uitgebouwd;
• Unieke mega aanbouw;
• Maar liefst ca. 204 m2 woonoppervlakte;
• Kunststof kozijnen met geïntegreerde rolluiken;
• Schitterende tuin met diverse terrassen;
• Groot zwembad (ter overname);
• Grote dubbele garage uit 2017 met achterom;
• Inclusief zonnepanelen (10 stuks) uit 2003;
• Energielabel A, geldig tot 25-05-2030;
• Geliefde, rustige locatie met op ca. 100 m landelijk gebied.

OMGEVING
De woning ligt aan de rand van de geliefde wijk Hoefveld in Nieuwenhagen, Landgraaf. De straat gaat ca. 100 m voorbij de woning over in een wandel-/fietspad in landelijk gebied. Dat is natuurlijk ideaal als je na een drukke werkdag even “buiten de deur” wilt ontspannen. Wil je iets meer, dan adviseren wij een dagje uit in het op 6 minuten autorijden gelegen prachtige natuurgebied Brunssummerheide. Heb je schoolgaande kinderen? De basisschool ligt op 300 m loopafstand. Voor het voortgezet onderwijs hoeven je kids maar 5 minuten te fietsen naar Het Eijkhagen College (VMBO-HAVO-VWO). Voor de boodschappen is er op 1.1 km afstand een groot winkelcentrum (Op de Kamp) voorhanden waar o.a. aanwezig de supermarkten Plus, Jumbo en Lidl als ook Kruidvat, Hema etc. Hoe zit het dan met bereikbaarheid voor je werk? Binnen 500 m afstand zijn er 2 bushaltes. Het dichtstbijzijnde NS-station ligt op ca. 2,4 km (Stationsplein 63 Landgraaf) en ga je met de auto, dan zit je binnen een paar minuten op de stadsautoweg N300 richting het noorden of zuiden met onderweg diverse aansluitingen op de reguliere autosnelwegen. Tot slot voor de sportliefhebbers. In de directe omgeving is er een ruime keuze in sportverenigingen (voetbal, tennis, paardrijden etc.)

OVERIG
Ter bescherming van de belangen van zowel koper als verkoper wordt uitdrukkelijk gesteld dat een koopovereenkomst met betrekking tot deze onroerende zaak eerst dan tot stand komt nadat de koper en verkoper de koopovereenkomst hebben getekend ("schriftelijkheidsvereiste"). De termijn die wordt opgenomen voor eventuele (overeengekomen) ontbindende voorwaarden (bv. financiering) is in de regel 6 tot 8 weken na het sluiten van de mondelinge wilsovereenkomst. De waarborgsom/bankgarantie is 10% van de koopsom. De koper dient deze 1 week ná het vervallen van de ontbindende voorwaarden bij de desbetreffende notaris te deponeren. Koper is te allen tijde gerechtigd voor eigen rekening een bouwkundige keuring te (laten) verrichten dan wel andere adviseurs te raadplegen teneinde een goed inzicht te verkrijgen over de staat van onderhoud. Deze informatie is door ons met de nodige zorgvuldigheid samengesteld. Onzerzijds wordt echter geen enkele aansprakelijkheid aanvaard voor enige onvolledigheid, onjuist of anderszins, dan wel de gevolgen daarvan. Alle opgegeven maten en oppervlakten zijn indicatief.
WONINGGEGEVENS
Type: tussengelegen herenhuis
Bouwjaar: 1934; aanbouw: 2004; garage: 2017
Woonoppervlakte: 204 m2
Inhoud: 718 m3
Perceelsoppervlakte: 541 m2

ENERGIE
Isolatie: volledig geïsoleerd
Verwarming/water : Remeha Avanta 28C CW5 cv-combiketel, 2012, eigendom
Energielabel: A, geldig tot 20-05-2030
BINNEN
Staat onderhoud: goed
Kamers: 6
Slaapkamers: tot max 4
Sanitaire voorzieningen: 2004
Keuken: 2004

BUITEN
Staat onderhoud: goed
Staat schilderwerk: n.v.t.
Tuin: achtertuin ca. 17m diep
Uitzicht: woonwijk en groen
Parkeren op eigen erf en gratis openbaar parkeren in vakken tegenover de woning
Neem contact op