Munstergeleen – Past. Bernegaustraat 3
25 oktober 2025
Sint Geertruid – De Hochterhof 5
19 november 2025
821

Beek - Pater Kusterspad 4

Deze uitstekend onderhouden en energiezuinige vrijstaand-geschakelde woning uit 1991 met aanbouw, 3 comfortabele slaapkamers, een nieuwe badkamer (2023) en een grote garage is gelegen op een geliefde locatie in een rustige, kindvriendelijke woonwijk aan de rand van Beek, op loopafstand van uitgestrekt landelijk gebied. Verduurzaming is al gerealiseerd met volledige isolatie, dubbele beglazing, airconditioning (2021) en 10 recente zonnepanelen (2023). Hierdoor heeft de woning energielabel A en lage energiekosten! Ben jij al nieuwsgierig geworden? Lees dan snel verder en bel (043-4506028) of mail ons (info@vaqs.nl) voor een bezichtiging. Je bent van harte welkom!

Vraagprijs 385.000,- k.k.

Bouwjaar: 1991
Perceel: 271 m2
Inhoud: ca. 425 m3
Woonoppervlakte: ca. 110 m2
Energielabel: A, geldig tot 09.09.2035
 
MEDIA
PLATTEGRONDEN
OMSCHRIJVING
Deze uitstekend onderhouden en energiezuinige vrijstaand-geschakelde woning uit 1991 met aanbouw, 3 comfortabele slaapkamers, een nieuwe badkamer (2023) en een grote garage is gelegen op een geliefde locatie in een rustige, kindvriendelijke woonwijk aan de rand van Beek, op loopafstand van uitgestrekt landelijk gebied. Verduurzaming is al gerealiseerd met volledige isolatie, dubbele beglazing, airconditioning (2021) en 10 recente zonnepanelen (2023). Hierdoor heeft de woning energielabel A en lage energiekosten! Ben jij al nieuwsgierig geworden? Lees dan snel verder en bel (043-4506028) of mail ons (info@vaqs.nl) voor een bezichtiging. Je bent van harte welkom!

BEGANE GROND
De voortuin van deze woning is grotendeels bestraat zodat je met gemak 2 auto’s kunt parkeren op je eigen terrein. Via de overdekte entree gaan we naar binnen en komen in de hal waar zich een moderne meterkast uit 2023 (met glasvezelaansluiting) bevindt. We lopen door naar de gezellige woonkamer van ca. 37 m2 met witte plavuizen vloer, een MaxiCool design airco uit 2021 en een elektrisch bedienbaar rolluik aan de voorzijde. De woonkamer heeft een room divider naar het gedeelte waar oorspronkelijk de keuken zich bevond, een portaal met toegang naar het gastentoilet, de garage en naar de verdieping alsmede een praktische, ruime bergkast waar de cv-combiketel (Intergas HRE uit 2021, huur) is geplaatst. Vanuit de woonkamer is er toegang naar de in de aanbouw gerealiseerde serre (1993) van ca. 5.40 x 2.55 m, voorzien van een ruim 4 meter brede schuifpui. Tevens kun je vanuit de woonkamer via een open doorgang naar de keuken van ca. 3.85 x 1.50 m. Aldaar is een inbouwkeuken in hoekopstelling geplaatst met een inductiekookplaat, oven-/magnetroncombinatie, vaatwasser (2025), inbouwkoelkast (2025) en een sierradiator. We lopen terug om via de woonkamer naar het portaal te gaan. Hier bevindt zich het deels betegelde gastentoilet met staand closet en fonteintje. Via het portaal kun je ook inpandig naar de ruim bemeten garage van ca. 7.00 x 2.70 m. Deze is voorzien van elektra en water en beschikt bovendien over splinternieuwe Hörmann aluminium garagedeuren. In het verlengde van de garage ga je d.m.v. een loopdeur naar een geïsoleerde wasruimte waar de witgoedaansluitingen zijn geplaatst. Vanuit deze ruimte heb je een praktische toegang naar de achtertuin. Aansluitend aan de tuinkamer is er in ca. 2008 een grote aluminium terrasoverkapping geplaatst in de onderhoudsvriendelijk aangelegde achtertuin gelegen op het oosten. Voor wie de huidige indeling op de begane grond zou willen wijzigen hebben wij bij de plattegronden een verbouwingssuggestie ter inspiratie bijgevoegd.

VERDIEPING
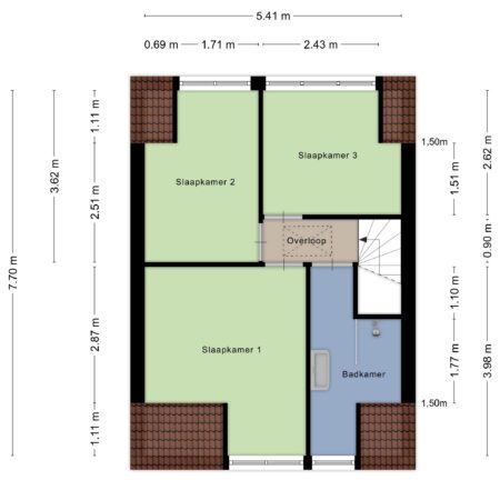
Via een gesloten trap vanuit het portaal gaan we naar boven en komen daar uit op een overloop die toegang geeft tot 3 slaapkamers, de badkamer en door middel van een nieuwe, inklapbare houten vlizotrap toegang naar de bergzolder. De geheel betegelde badkamer van ca. 5.5 m2 is in 2023 volledig vernieuwd en beschikt over een inloopdouche met glazen spatwand, een groot formaat wastafelmeubel, sierradiator, mechanische ventilatie en een dakkapel met rolluik. Zowel de overloop als de 3 slaapkamers zijn voorzien van een nieuwe hout-look pvc-vloer uit 2023. De 3 slaapkamers van respectievelijk ca. 12, 8 en 7 m2 zijn allemaal voorzien van een dakkapel en deels nieuwe rolluiken.

ZOLDER
Met een houten vlizotrap komen we op een ruime bergzolder van ca. 5.40 x 3.45 m met een maximale hoogte tot onderkant nokbalk van ca. 1.70 m.

KORT SAMENGEVAT
• Geliefde, rustige en kindvriendelijke woonwijk;
• Vrijstaand-geschakelde woning uit 1991;
• Met aanbouw (serre) uit 1993;
• Met 3 comfortabele slaapkamers;
• In 2023 volledig vernieuwde badkamer;
• Uitstekende staat van onderhoud;
• Hardhouten kozijnen met dubbele beglazing;
• Airconditioning uit 2021 op de begane grond;
• Volledig geïsoleerd;
• Zonnepanelen 10 stuks uit 2023, 4050 Wp;
• Energielabel A, geldig tot 09-09-2035;
• Heerlijke, onderhoudsvrije achtertuin met veel privacy.

OMGEVING
Deze woning ligt in een geliefde en rustige woonwijk aan de rand van Beek. Dat betekent dat je in no time het prachtige Zuid-Limburgse landschap inloopt of fietst. Beek is een fijn dorp om te wonen want vele voorzieningen zijn er aanwezig. In het centrum bevinden zich speciaalzaken, diverse boetieks, gezellige horecagelegenheden en diverse supermarkten. Beek beschikt over een aantal basisscholen. Voor het voortgezet onderwijs ben je aangewezen op omliggende plaatsen. Binnen een straal van 9 tot 11 km fietsafstand bevinden zich 4 colleges. Daarnaast is er nog het winkelcentrum Makado. Voor je ontspanning biedt het aangrenzende landelijke gebied natuurlijk al genoeg mogelijkheden. Ook in Beek bevindt zich “Sportlandgoed de Haamen” met diverse sportvelden, clubs en een binnenzwembad. Wat bereikbaarheid betreft zit je uitstekend in Beek. De autosnelwegen A2 (richting Maastricht/Eindhoven) en de A76 (richting Heerlen/Brussel) zijn eenvoudig en snel te bereiken. Bovendien beschikt Beek ook nog over een eigen NS-treinstation!

OVERIG
Ter bescherming van de belangen van zowel koper als verkoper wordt uitdrukkelijk gesteld dat een koopovereenkomst met betrekking tot deze onroerende zaak eerst dan tot stand komt nadat de koper en verkoper de koopovereenkomst hebben getekend ("schriftelijkheidsvereiste"). De termijn die wordt opgenomen voor eventuele (overeengekomen) ontbindende voorwaarden (bv. financiering) is in de regel 6 tot 8 weken na het sluiten van de mondelinge wilsovereenkomst. De waarborgsom/bankgarantie is 10% van de koopsom. De koper dient deze 1 week ná het vervallen van de ontbindende voorwaarden bij de desbetreffende notaris te deponeren. Koper is te allen tijde gerechtigd voor eigen rekening een bouwkundige keuring te (laten) verrichten dan wel andere adviseurs te raadplegen teneinde een goed inzicht te verkrijgen over de staat van onderhoud. Deze informatie is door ons met de nodige zorgvuldigheid samengesteld. Onzerzijds wordt echter geen enkele aansprakelijkheid aanvaard voor enige onvolledigheid, onjuist of anderszins, dan wel de gevolgen daarvan. Alle opgegeven maten en oppervlakten zijn indicatief.
WONINGGEGEVENS
Type: vrijstaand-geschakeld
Bouwjaar: 1991
Woonoppervlakte: ca. 110 m2
Inhoud: ca. 425 m3
Perceelsoppervlakte: 271 m2

ENERGIE
Isolatie: dubbele beglazing
Verwarming/water : Intergas HRE, cv-combiketel, 2021, huur
Energielabel (definitief): A, geldig tot 09.09.2035, niet actueel
BINNEN
Staat onderhoud: uitstekend
Kamers: 7
Slaapkamers: 3
Sanitaire voorzieningen: badkamer modern, toilet gedateerd
Keuken: gedateerd (2000) met deels recente apparatuur

BUITEN
Staat onderhoud: uitstekend
Staat schilderwerk: uitstekend (2025)
Uitzicht: woonwijk
Garage: inpandig
Neem contact op